Thông tin sản phẩm bồn cầu 1 khối TOTO MS857DW14 nắp điện tử Washlet C5 TCF24410AAA
Thông tin của bồn cầu 1 khối TOTO MS857DW14:
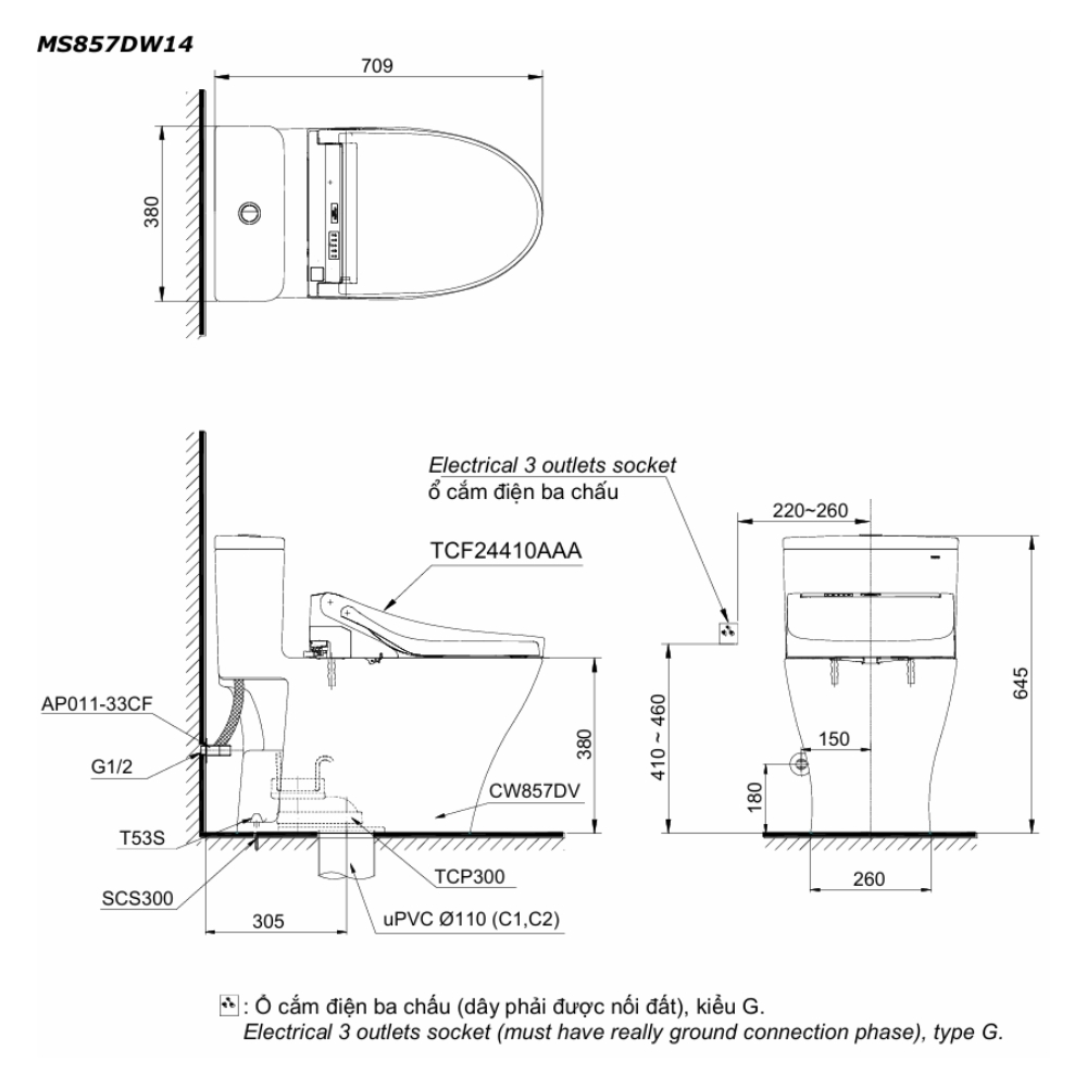
- Kích thước: L709 x W380 x H645 (mm)
- Màu sắc: Trắng
- Hệ thống xả: Tornado
- Lượng nước xả: 4.5L/3L
- Thiết kế: Thân dài, thân kín
- Tâm xả: 305mm
- Áp lực nước: 0.05 ~ 0.70MPa
- Lưu ý: Bao gồm van dừng
Kèm washlet C5 TOTO TCF24410AAA#NW1
- Màu sắc: Trắng
- Thiết kế cho bàn cầu thân dài, loại thường
- Áp lực nước: 0.05 ~ 0.75 MPa
- Công suất: 307-362 (W)
- Nguồn điện: 220V, 50/60Hz
- Kích thước: 530 x 383 x 147 (mm)
- Chiều dài dây điện: 1200 (mm)
- Chiều dài dây cấp nước: 550 (mm)
- Chất liệu: Nhựa
- Tính năng:
- Điều khiển từ xa
- Công nghệ nước điện phân khử khuẩn Ewater+ (Vệ sinh vòi rửa)
- Vòi rửa massage đa chức năng, rửa sạch, êm ái
- Tự vệ sinh vòi rửa trước và sau khi sử dụng
- Sấy khô, khử mùi, sưởi ấm nắp ngồi
Đặc điểm nổi bật của bồn cầu 1 khối nắp điện tử Washlet C5 TCF24410AAA TOTO MS857DW14
Bàn cầu mã MS857 với các ưu điểm:
- Men sứ chống bám bẩn CEFIONTECT được tráng phủ lên toàn bộ bề mặt bồn cầu, ngăn chặn các chất thải, vi khuẩn và nấm mốc bám vào bề mặt bồn cầu. Nhờ đặc tính ưa nước của lớp men, các chất thải được rửa trôi nhanh chóng.
- Hệ thống xả xoáy Tornado không chỉ làm sạch các cặn bẩn hiệu quả hơn mà còn giảm tiếng ồn khi xả bằng cách giảm lượng nước. Hệ thống này sẽ xả nước từ phía trước và sử dụng áp lực nước liên tục xoáy đều bên trong bồn cầu làm sạch tất cả những khu vực dễ tích tụ chất bẩn nhất, bên cạnh đó còn giúp tiết kiệm nước với chế độ xả 4.5/3L.
- Thiết kế vành kín độc đáo không có chỗ cho vi khuẩn hoặc chất thải bám vào, giúp việc lau chùi trở nên dễ dàng hơn.
Kèm washlet C5 TOTO TCF24410AAA#NW1 với tính năng nổi bật:
- Nắp rửa có màu trắng sang trọng, hiện đại với vật liệu nhựa resin cao cấp bền bỉ theo thời gian.
- Với vòi rửa massage đa chức năng, giúp người dùng làm sạch bằng nước ấm, sấy khô và sưởi ấm bệ ngồi hiện đại.
- Công nghệ khử trùng điện phân EWATER+ được tạo ra bằng cách điện phân ion clorua trong nước máy. Nước điện phân EWATER+ có khả năng tiêu diệt vi khuẩn, làm sạch lên đến 99,9% và loại bỏ vết bẩn cứng đầu ố vàng vĩnh viễn.
- Công nghệ khử mùi DEODORIZER trong và sau khi sử dụng, giúp cho thiết bị vệ sinh, không gian phòng tắm được thông thoáng, không còn mùi hôi và đảm bảo an toàn cho sức khỏe người dùng.
- Công nghệ phun sương PREMIST tự động phun nước lên bề mặt trong của lòng cầu trước mỗi lần sử dụng. Do cấu tạo là gốm sứ nên bản chất ưa nước, chất thải trên bề mặt của lòng cầu sẽ được rửa trôi dễ dàng hơn.
- Công nghệ sưởi ấm bệ ngồi HEATED SEAT tức thì ngay sau khi sử dụng, có thể điều chỉnh các mức độ nhiệt độ bệ ngồi dễ dàng với điều khiển gắn liền bên hông.
Bản vẽ kỹ thuật của bồn cầu 1 khối TOTO MS857DW14 nắp điện tử Washlet C5





Đánh giá
Chưa có đánh giá nào.